fr

Votre recherche

Exclusivité
Gontaud-de-Nogaret (47400)

5 pièces - 108,30 m²

GONTAUD DE NOGARET - village tous commerces

139 000 €
Ref : 2978
Découvrir le bien

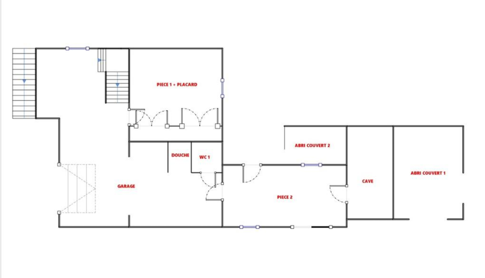
Maison individuelle élevée d'un rez-de-chaussée et d'un étage offrant une surface habitable d'environ 105m². Elle se compose en rez-de-chaussée, d'un garage, d'une buanderie, d'une chambre, d'une salle d'eau, d'un WC, d'un atelier. A l'étage, une entrée, un double-séjour avec cheminée de 35m², une cuisine aménagée, 3 chambres, une salle d'eau, un Wc. Balcon, jardin clos d'environ 2000m².


LES INFORMATIONS SUR LES RISQUES AUXQUELS CE BIEN EST EXPOSE SONT DISPONIBLES SUR LE SITE GEORISQUES : www.georisques.gouv.fr

TRAD_ZEPHYR_Caracteristique TRAD_ZEPHYR_Valeurs
Code postal 47400
surface terrain 2 000 m²
Nombre de chambre(s) 3
Nombre de pièces 5
Nombre de niveaux 1
TRAD_ZEPHYR_Caracteristique TRAD_ZEPHYR_Valeurs
Nb de salle d'eau 1
Mode de chauffage Electrique
Type de chauffage Convecteur
Format de chauffage Individuel
Interphone NON
Visiophone NON
Nombre de garage 1
Terrain arboré OUI
TRAD_ZEPHYR_Caracteristique TRAD_ZEPHYR_Valeurs
Prix de vente 139 000 €
Les honoraires d'agence seront intégralement à la charge du vendeur  
Rez de chaussée
Salon 19.21 m²

salon/sejour 15.32 m²

2.66 m²

entrée 4.74 m²

cuisine 13.09 m²

chambre 12.15 m²

salle d'eau 4.91 m²

WC 1.20 m²

chambre 16.31 m²

chambre 16.39 m²

DPE GES
  • Commerces et santé
  • Loisirs
  • Ecoles
  • Transports
  • Pratique
Contacter pour ce bien
L'agence
Téléphone 05 53 64 23 23
Adresse
30 Boulevard Raymond Fourcade 47200 Marmande

* Champ obligatoire

Les informations recueillies sur ce formulaire sont enregistrées dans un fichier informatisé par La Boite Immo agissant comme Sous-traitant du traitement pour la gestion de la clientèle/prospects de l'Agence / du Réseau qui reste Responsable du Traitement de vos Données personnelles. La base légale du traitement repose sur l'intérêt légitime de l'Agence / du Réseau. Elles sont conservées jusqu'à demande de suppression et sont destinées à l'Agence / au Réseau. Conformément à la loi « informatique et libertés », vous disposez des droits d’accès, de rectification, d’effacement, d’opposition, de limitation et de portabilité de vos données. Vous pouvez retirer votre consentement à tout moment en contactant directement l’Agence / Le Réseau. Consultez le site https://cnil.fr/fr pour plus d’informations sur vos droits. Si vous estimez, après avoir contacté l'Agence / le Réseau, que vos droits « Informatique et Libertés » ne sont pas respectés, vous pouvez adresser une réclamation à la CNIL. Nous vous informons de l’existence de la liste d'opposition au démarchage téléphonique « Bloctel », sur laquelle vous pouvez vous inscrire ici : https://www.bloctel.gouv.fr Dans le cadre de la protection des Données personnelles, nous vous invitons à ne pas inscrire de Données sensibles dans le champ de saisie libre.
Ce site est protégé par reCAPTCHA, les Politiques de Confidentialité et les Conditions d'Utilisation de Google s'appliquent.

Découvrir nos outils